全案定制 · 大宅家裝
個性化定制 · 生活不將就
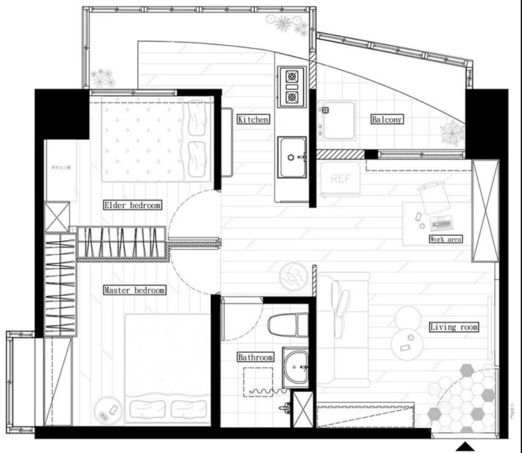
許多人購買平米較小的房子,卻欲罷不能似地想放進許多東西,其實應該事先做好取舍,設計師也應該協助評估。今天我們來講下這間60㎡的老房子,如何規劃裝修會更舒服呢?

房屋信息:
戶型 2室1廳1衛
屋齡 30年
面積 60㎡
風格 北歐日式
居住人數 2人
屋主述求:
1.希望空間利用率更高,不浪費1㎡~
2.家里有長輩,收納、動線等生活技能要考慮長者需求。
3.廚房空間過小,想讓廚房看起來更寬闊!

正方形戶型,是比較容易改造的。為了便于老人走動,設計師在房屋動線上重新進行了劃分,擴容收納,鑿開不必要的墻壁,改為櫥柜墻,營造放大空間的視覺效果。

進門處,拼貼了多色六角地磚規劃成落塵區,巧妙與整室木地板結合,鞋子放在客廳墻邊的收納柜里。

置身客廳,一眼望去的環伺立面與柜體,皆以明亮白色為基底。


由于客廳空間的采光效果,利用自然光源,營造出層次錯落美感,圓形桌幾巧妙讓客廳展現非方正規矩的設計趣味感,不至于過于浮夸。


餐廳空間規劃:
① 當客餐廳空間一體時,建議把餐廳規劃在窗戶旁,動線合理,也能享受窗邊自然光源,確保舒適用餐環境。
② 一旁配置了收納柜體,提高空間使用效率。


家里長輩經常會在家里下廚煮菜,替換成尺寸長一些的廚柜,廚房與餐廳串聯在一起。墻面用了烤漆玻璃的材質,讓廚房更加通透明亮。

主臥空間相對較大,為了合理運用不浪費每一個角落,設計了整面的收納區,收納柜對于小空間來說,不宜過多也不宜過少,必須注意使用面積,一般小戶型空間最好規劃一面柜體即可。

臥室配色挑選了主人喜歡的淺粉紅色,連同木質衣柜的溫潤紋理,顯得更加柔和與紓壓。

在白色與淺木色所共同烘托的純凈透亮與休閑質樸中,兩間臥室各在一側立面漆刷淡粉紅色,使小空間也能感受到意境轉換與豐富層次。

衛生間整屋開放,沒有采取干濕分離設計,考慮到沒有窗戶,設計師選擇立面全鋪貼的白色磁磚,借以提升整體明亮度,但地面選擇灰色地磚,讓小空間有層次變化,也不容易顯臟。
小戶型住家設計七分滿就好,剩下二分是給軟裝,最后一分則保留給你住進來之后,過了許久仍覺得必要添加的東西,才能有效利用空間。
☆強力推薦
個性化定制 · 生活不將就


數據預算由樂蜂裝飾集團歷史交付10萬+業主裝修數據
各個小區的簽單合同數據經過大數據實時分析計算