 - 玄關實景圖
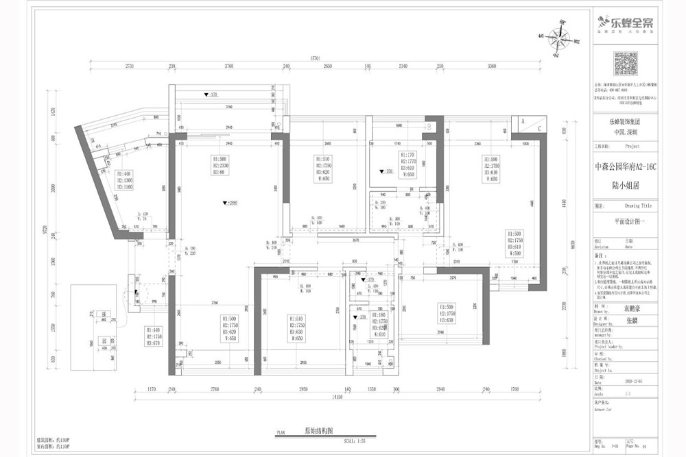
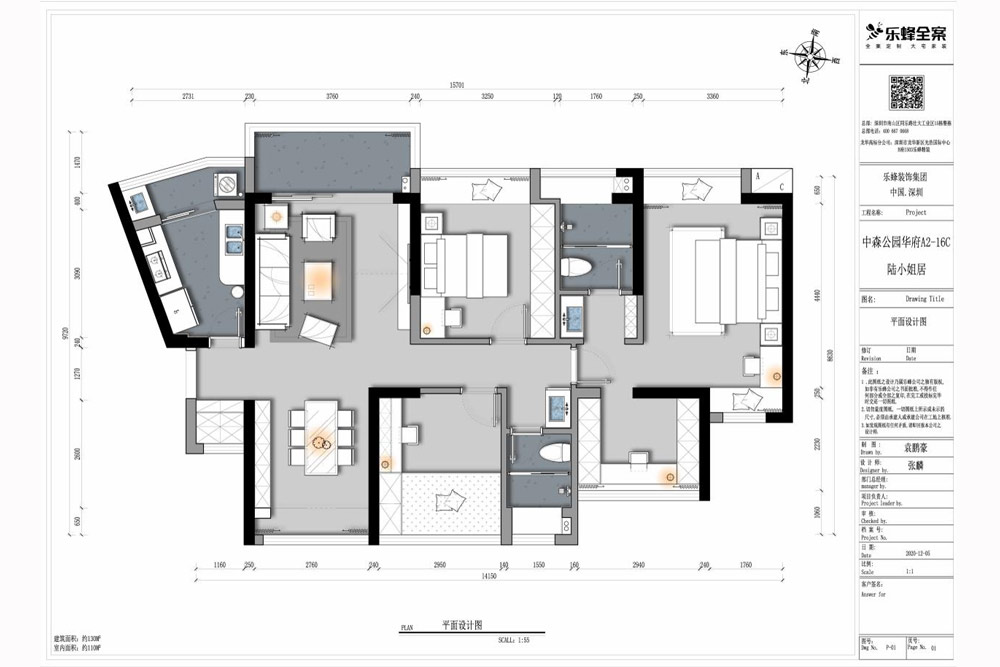
 - 整體房屋結構在承重結構方面會比較多,這讓能改動的地方變得局限,可以肯定的是主臥的衣帽間和衛生間的空間利用率不高,格局太過于局限了,但是陸姐對衣帽間的需求又比較高,客廳背后的房間又比較小,很難施展設計。
設計過后平面布局已經清晰,客餐廳整體位置不變,繼續保留觀景陽臺和生活陽臺的區域,原有的四個房間調整為三個,原有主臥旁邊窄小難以利用的小房間作為主臥的衣帽間使用,這樣一來主臥衛生間出口的兩側的衣帽間被釋放開來,通過削減寬度來讓另一個房間有足夠的空間來布置整排的衣柜解決收納問題。 
 - 玄關實景圖
 - 整體房屋結構在承重結構方面會比較多,這讓能改動的地方變得局限,可以肯定的是主臥的衣帽間和衛生間的空間利用率不高,格局太過于局限了,但是陸姐對衣帽間的需求又比較高,客廳背后的房間又比較小,很難施展設計。
設計過后平面布局已經清晰,客餐廳整體位置不變,繼續保留觀景陽臺和生活陽臺的區域,原有的四個房間調整為三個,原有主臥旁邊窄小難以利用的小房間作為主臥的衣帽間使用,這樣一來主臥衛生間出口的兩側的衣帽間被釋放開來,通過削減寬度來讓另一個房間有足夠的空間來布置整排的衣柜解決收納問題。 
 - 客廳實景圖
 - 整體簡約不代表變簡單的布置,很多綜合因素都要考慮進來,比如我們在吊頂中暗藏了線組,將音響暗藏到吊頂里面,既能保持背景墻的簡潔還能給客廳帶來良好的試聽氛圍。
除了在音響上下功夫,燈光上也做多重結合,在沙發邊上的落地燈、吊頂上的暗藏筒燈、磁吸軌道燈,電視背景墻里的暗藏燈帶共同作用下,客廳的燈光明暗有致,更加有層次感。 
 - 客廳實景圖
 - 整體簡約不代表變簡單的布置,很多綜合因素都要考慮進來,比如我們在吊頂中暗藏了線組,將音響暗藏到吊頂里面,既能保持背景墻的簡潔還能給客廳帶來良好的試聽氛圍。
除了在音響上下功夫,燈光上也做多重結合,在沙發邊上的落地燈、吊頂上的暗藏筒燈、磁吸軌道燈,電視背景墻里的暗藏燈帶共同作用下,客廳的燈光明暗有致,更加有層次感。 
 - 客廳實景圖
 - 整體簡約不代表變簡單的布置,很多綜合因素都要考慮進來,比如我們在吊頂中暗藏了線組,將音響暗藏到吊頂里面,既能保持背景墻的簡潔還能給客廳帶來良好的試聽氛圍。
除了在音響上下功夫,燈光上也做多重結合,在沙發邊上的落地燈、吊頂上的暗藏筒燈、磁吸軌道燈,電視背景墻里的暗藏燈帶共同作用下,客廳的燈光明暗有致,更加有層次感。 
 - 客廳實景圖
 - 整體簡約不代表變簡單的布置,很多綜合因素都要考慮進來,比如我們在吊頂中暗藏了線組,將音響暗藏到吊頂里面,既能保持背景墻的簡潔還能給客廳帶來良好的試聽氛圍。
除了在音響上下功夫,燈光上也做多重結合,在沙發邊上的落地燈、吊頂上的暗藏筒燈、磁吸軌道燈,電視背景墻里的暗藏燈帶共同作用下,客廳的燈光明暗有致,更加有層次感。 
 - 餐廳實景圖 - 餐廳在客廳的基礎調性上有微小調整,餐桌上方的吊燈讓餐桌區域的照明成為整個區域的重點,用餐時候餐桌上的食物更加具有光澤和亮麗的色彩,同樣窗戶作為自然光源所提供的自然光照也不差。
我們將客餐廳聯系起來看,地面通鋪的柔光磚相比于亮光地磚更加具有質感,十字動線串聯起客餐廳、玄關和各個房間聯系,燈光又以不同的照明形式來增加空間的層次感。 
 - 餐廳實景圖 - 餐廳在客廳的基礎調性上有微小調整,餐桌上方的吊燈讓餐桌區域的照明成為整個區域的重點,用餐時候餐桌上的食物更加具有光澤和亮麗的色彩,同樣窗戶作為自然光源所提供的自然光照也不差。
我們將客餐廳聯系起來看,地面通鋪的柔光磚相比于亮光地磚更加具有質感,十字動線串聯起客餐廳、玄關和各個房間聯系,燈光又以不同的照明形式來增加空間的層次感。 
 - 廚房實景圖 - 廚房布局呈左右雙一字型的形狀,冰箱和臺盆在一側,從冰箱里拿出來的食材可以加工后進行清洗,再轉身進行烹飪,動線清晰明了,中間留出通往生活陽臺的過道,生活陽臺這邊用雙扇加高的推拉門來增加空間的采光。
不管是烹飪區還是臺盆區在吊柜下方都有燈帶來輔助照明,畢竟單純以來頂面的采光還是會有被遮擋的陰影區,吊柜上的燈帶能有效補充光源,防止摸黑;灶臺旁邊的收納架顏值很高也很實用。 
 - 廚房實景圖 - 廚房布局呈左右雙一字型的形狀,冰箱和臺盆在一側,從冰箱里拿出來的食材可以加工后進行清洗,再轉身進行烹飪,動線清晰明了,中間留出通往生活陽臺的過道,生活陽臺這邊用雙扇加高的推拉門來增加空間的采光。
不管是烹飪區還是臺盆區在吊柜下方都有燈帶來輔助照明,畢竟單純以來頂面的采光還是會有被遮擋的陰影區,吊柜上的燈帶能有效補充光源,防止摸黑;灶臺旁邊的收納架顏值很高也很實用。 
 - 主臥實景圖 - 主臥溫馨的氛圍在軟裝、燈光、硬裝材質上體現得淋漓盡致,窗簾盒里內嵌的暖光燈帶打到窗簾上增強窗簾質感,床邊的長臂床頭燈能方便屋主在床上夜讀和刷手機的時候保護視力。
除了床頭壁燈之外我們還有更多的配置,比如主臥的投影儀能讓屋主在床上就能享受到觀影的樂趣,相比于傳統的電視觀影,投影儀的投影面積更大,帶來的觀影體驗也有其獨特的優勢。 
 - 主臥實景圖 - 主臥溫馨的氛圍在軟裝、燈光、硬裝材質上體現得淋漓盡致,窗簾盒里內嵌的暖光燈帶打到窗簾上增強窗簾質感,床邊的長臂床頭燈能方便屋主在床上夜讀和刷手機的時候保護視力。
除了床頭壁燈之外我們還有更多的配置,比如主臥的投影儀能讓屋主在床上就能享受到觀影的樂趣,相比于傳統的電視觀影,投影儀的投影面積更大,帶來的觀影體驗也有其獨特的優勢。 
 - 主臥實景圖 - 主臥溫馨的氛圍在軟裝、燈光、硬裝材質上體現得淋漓盡致,窗簾盒里內嵌的暖光燈帶打到窗簾上增強窗簾質感,床邊的長臂床頭燈能方便屋主在床上夜讀和刷手機的時候保護視力。
除了床頭壁燈之外我們還有更多的配置,比如主臥的投影儀能讓屋主在床上就能享受到觀影的樂趣,相比于傳統的電視觀影,投影儀的投影面積更大,帶來的觀影體驗也有其獨特的優勢。 
 - 次臥實景圖 - 因為主臥衛生間空間的合理分配,從而時旁邊次臥的空間得到有效補充,在床尾的整排衣柜是繼衣帽間之后的第二大衣物收納空間,有效承擔了換季衣物、被褥的收納任務。 
 - 次臥實景圖 - 因為主臥衛生間空間的合理分配,從而時旁邊次臥的空間得到有效補充,在床尾的整排衣柜是繼衣帽間之后的第二大衣物收納空間,有效承擔了換季衣物、被褥的收納任務。 
 - 兒童房實景圖 - 同樣具有收納意義的還有榻榻米房,強大的收納空間是榻榻米地臺的優勢,除了收納之外,在有客人來家里需要留宿的時候,榻榻米房能滿足客人睡眠的需要。 
 - 兒童房實景圖 - 同樣具有收納意義的還有榻榻米房,強大的收納空間是榻榻米地臺的優勢,除了收納之外,在有客人來家里需要留宿的時候,榻榻米房能滿足客人睡眠的需要。 
 - 衣帽間實景圖 - 衣帽間大概是每一個女生的夢吧,柜體燈光的加持下,柜子里能夠存放展示的物品來愉悅自己的內心,粉色的梳妝臺喚起滿滿的少女心,和梳妝臺抽屜相配合的儲物空間是旁邊用來存放化妝品的收納小推車,化妝時取用任何物品都很方便。 
 - 衛生間實景圖 - 在衛生間儲物方面,臺盆柜的對面一組儲物柜能收納不少物品,像是衛生間需要的紙巾、毛巾等一些洗漱用品都能收納進去,搭配上柜體燈光讓儲物體驗不再單調。
臺盆分離出來的洗手間在洗漱上能比較好的兼容同時使用的需求,衛生間內部通過淋浴隔斷分隔出來的淋浴區能夠讓馬桶區更加干凈衛生,方便打掃。 
 - 衛生間實景圖 - 在衛生間儲物方面,臺盆柜的對面一組儲物柜能收納不少物品,像是衛生間需要的紙巾、毛巾等一些洗漱用品都能收納進去,搭配上柜體燈光讓儲物體驗不再單調。
臺盆分離出來的洗手間在洗漱上能比較好的兼容同時使用的需求,衛生間內部通過淋浴隔斷分隔出來的淋浴區能夠讓馬桶區更加干凈衛生,方便打掃。 
 - 陽臺實景圖 - 看似平平無奇的陽臺在安裝上洞洞板之后儲物空間大大增加,不少家政用品、掃拖機等都能防止在這里,洞洞板又能根據物品的數量增加層板的數量,真可謂是顏值和實用性俱佳的家居產品。